خانه جابان
گروه معماری کلیاس کویر (مهدی گرامی)
موقعیت: جابان، دماوند، تهران، ایران
تاریخ: ۱۴۰۲
مساحت: ۴۵۵ مترمربع
وضعیت: ساختهشده
کارفرما: بخش خصوصی
تیم طراحی: سهیل فناللهی، آرمن هاروت، فریال پیشگر، مونا نوروزی
دیاگرام: پویا احراری
سازه: آرمان احمدی آریا
تاسیسات مکانیکی: نیما شعبانی
تاسیسات الکتریکی: آرش بابازاده
عکس: علیرضا یزدیزاده
خانه، بیش از آنکه صرفا یک ساختار کالبدی باشد، محل تلاقی تجربههای زیسته، خاطرات، انتظارات و زمینه جغرافیایی و فرهنگی است. از اینرو، طراحی خانه همواره فراتر از پاسخ به یک برنامه عملکردی صرف میرود و به قلمرویی بدل میشود که در آن معماری با امر شخصی، با حافظه و با زیستجهان ساکنان درگیر میشود. از همین رو، خانهها از آن دسته پروژههایی هستند که در آنها رابطه معمار و کارفرما، نقشی اساسی در روند طراحی ایفا میکند. بر خلاف بسیاری از پروژههای عمومی که در آنها کارفرما بیشتر نقشی سازمانی و در سطح نظارت دارد، در پروژه مسکونی، کارفرما، معمولا بهرهبردار نهایی است؛ کسی که نهتنها خواستههای عملکردی، بلکه خاطرات، ترجیحات حسی، و تجربه زیستهاش نیز وارد فرآیند طراحی میشود. این موقعیت، فرصت و در عین حال، چالشی برای معمار فراهم میکند تا از قالبهای پیشساخته فاصله بگیرد و معماری را از درون یک گفتوگوی زنده و پیوسته شکل دهد.

پروژه «خانه جابان» در چنین بستری شکل گرفت؛ پروژهای که از همان آغاز، با موقعیتی غیرمعمول و در عین حال، پرظرفیت روبهرو بود: کارفرمای پروژه کسی بود که دوران کودکی و جوانی خود را در خانههای سنتی کویری یزد، با فضاهایی درونگرا، دیوارهای خشتی ضخیم و حیاطهای سایهدار سپری کرده بود، اما اکنون قرار بود برای او خانهای در بافتی کاملا متفاوت طراحی کنیم: خانهباغی در منطقهای ییلاقی نزدیک به تهران، با اقلیم، منظر و فرهنگ بومی متفاوت. این تقاطع بین خاطره و زمینه، امکانی فراهم کرد تا معماری نه صرفا به بازنمایی گذشته، بلکه به بازآفرینی آن در زمینهای نو تبدیل شود.

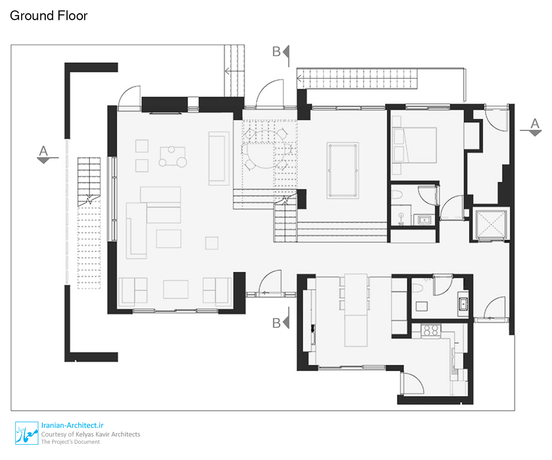
ما از ابتدا تصمیم گرفتیم تا خانه را نه در یک حجم واحد، بلکه در قالب دو حجم مستقل سازمان دهیم که از طریق یک مفصل، به یکدیگر متصل میشوند. این مفصل، فقط عنصر ارتباطی نیست، بلکه ناحیهای انتقالی است که ساکنان را از تجربهای به تجربه دیگر میبرد. یکی از این دو حجم، به فضاهای نشیمن و پذیرایی اختصاص یافته و دیگری، جایگاه فضاهای خصوصی یا همان اتاقهای خواب و همینطور عملکردیتر خانه، مانند آشپزخانه و فضای بازی است که میتوانند نقش واسط را بین فضاهای خصوصی عمومی را بازی کنند.

در عین حال، میخواستیم سازمان فضایی پروژه به شکل ناخواسته به خانههای تاریخی کویری با حس فراگیر محرمیت تقلیل نیابد. برعکس، هدف ما ایجاد جریان آزاد دید و پیوستگی مناظر در فضا بود. برای این منظور، پلی طراحی کردیم که از کنار وُید فضای عمومی آغاز میشود و تا راهروی دسترسی به اتاقهای خواب امتداد مییابد. این پل نهتنها مسیر حرکتی پیوستهای در دل پروژه پدید آورد، بلکه امکان تجربه فضایی متنوع و پویایی را نیز برای ساکنان فراهم ساخت.

در نهایت، پروژه خانه جابان برای ما فرصتی بود تا بار دیگر به بازنگری در مفاهیم تثبیتشدهای چون سازمان فضایی، حدود خصوصیـعمومی، و ارتباط معماری با خاطره فردی بپردازیم. این پروژه نه صرفا یک طراحی مسکونی، بلکه نوعی تجربه تحقیق درونپروژهای بود؛ تجربهای که میکوشد نشان دهد چگونه میتوان معماری را از دل گفتوگویی میان زمینه، حافظه و نیاز امروز، بازتعریف کرد.
Jaban House
Kelyas Kavir Architects (Mehdi Gerami)
Location: Jaban, Damavand, Tehran, Iran
Date: 2024
Area: 455 sqm
Status: Completed
Client: Private Sector
Design Team: Soheil FanaElahi, Armen Harout, Ferial Pishgar, Mona Norouzi
Diagram: Pouya Ahrari
Structure: Arman Ahmadi Arya
Mechanical Engineering: Nima Shabani
Electrical Engineering: Arash Babazadeh
Photo: Alireza Yazdizadeh































