ساختمان لتاج شماره یک / دفتر معماری زمردی و همکاران

Letaj No. 01 Building / Zomorrodi & Associates

ساختمان لتاج شماره یک

دفتر معماری زمردی و همکاران (شهروز زمردی)

موقعیت: تهران، ایران
تاریخ: ۱۴۰۳
مساحت: ۹،۰۰۰ مترمربع
وضعیت: ساخته‌شده
کارفرما: آقای تاجیک
تیم طراحی شماتیک و داخلی: رضا کاتبی، نسترن شعبان‌زاده، آناهیتا سیفایی
سرپرست طراحی فنی: حامد نوریان
تیم طراحی فنی: پریسا ابوترابیان، افروز دمهری، الهه صابری، علیرضا محیط، کیانا زارع، پارمیدا حیدری
مدل‌سازی سه‌یعدی: علی مورج، رضا کتابی
اجرا: گروه لتاج 
ارائه: سپیده رضوانی، فاطمه شهنی
عکس: محمدحسن اتفاق

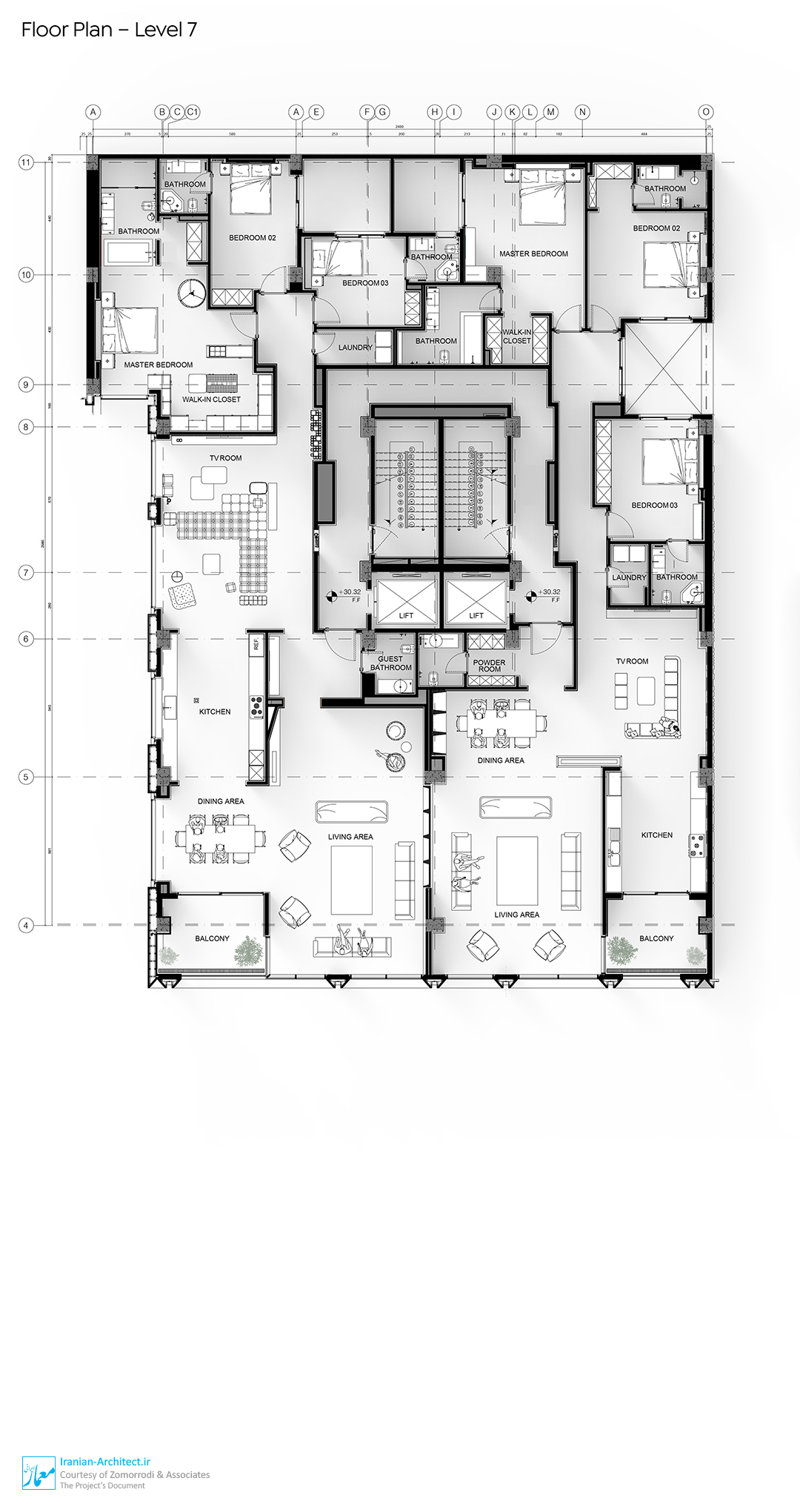
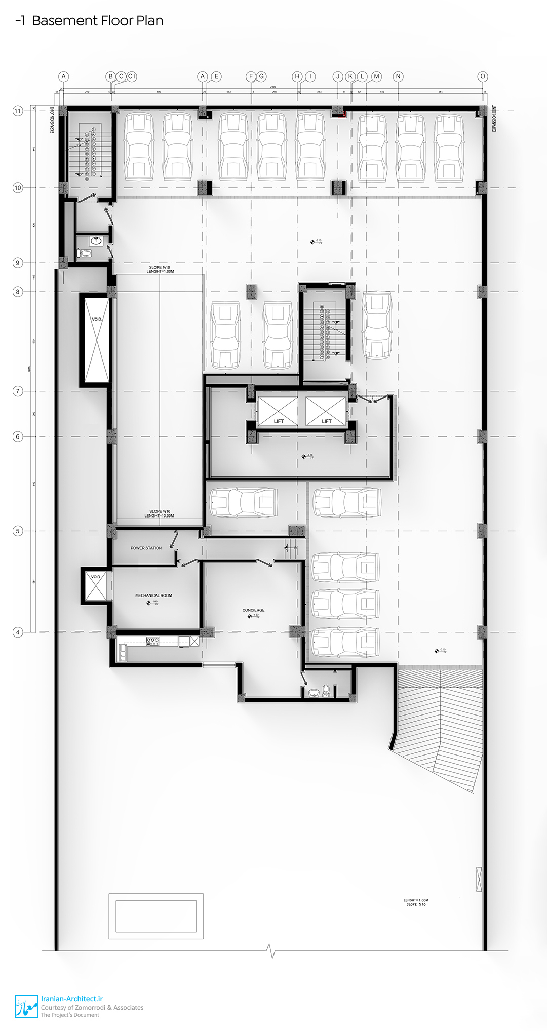
پروژه مسکونی لِتاج شماره یک در زمینی به مساحت ۱۲۵۰ متر مربع، در خیابان سعیدی، محله دروس تهران واقع شده است. این ساختمان شامل سه طبقه زیرزمین، یک طبقه همکف و هشت طبقه مسکونی روی زمین است. تیم طراحی پس از تکمیل مراحل سازه وارد پروژه شد و با تمرکز بر طراحی نما، بام، فضاهای داخلی واحدها و پنت‌هاوس، هویت و کیفیت معماری پروژه را ارتقا بخشید.

ساختمان لتاج شماره یک / دفتر معماری زمردی و همکاران
Courtesy of Zomorrodi & Associates | Photo: Mohammad Hassan Ettefagh

طبقه همکف ساختمان شامل لابی مجلل و سالن اجتماعات است که علاوه بر ورود باشکوه، فضای گردهمایی و تعامل ساکنان را نیز فراهم می‌کند. کانسپت طراحی داخلی لابی و سالن اجتماعات از ایده باغ‌های ذن ژاپنی الهام گرفته است. در ورودی و فضای لابی، باغچه‌های اکسپوز با شن سفید طراحی شده‌اند که یادآور آرامش و مینیمالیسم ذن هستند. ستون مرکزی لابی به صورت المانی درخت‌مانند شکل گرفته که نمادی از طبیعت در فضای داخلی است و پیوندی عمودی در فضا ایجاد می‌کند. این فرم سیال، تضادی شاعرانه با خطوط خشک و زاویه‌دار اطراف ایجاد کرده و حس حرکت طبیعی و رو به رشد را در فضا القا می‌کند؛ گویی طبیعت در دل معماری جاری شده است.

ساختمان لتاج شماره یک / دفتر معماری زمردی و همکاران
Courtesy of Zomorrodi & Associates | Photo: Mohammad Hassan Ettefagh

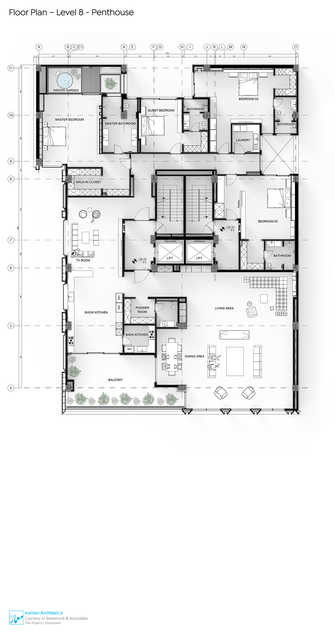
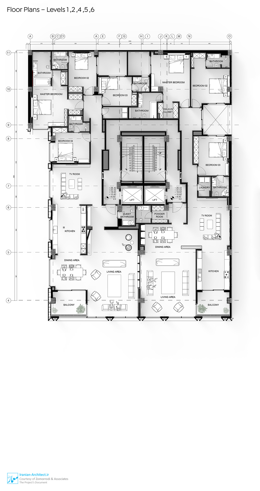
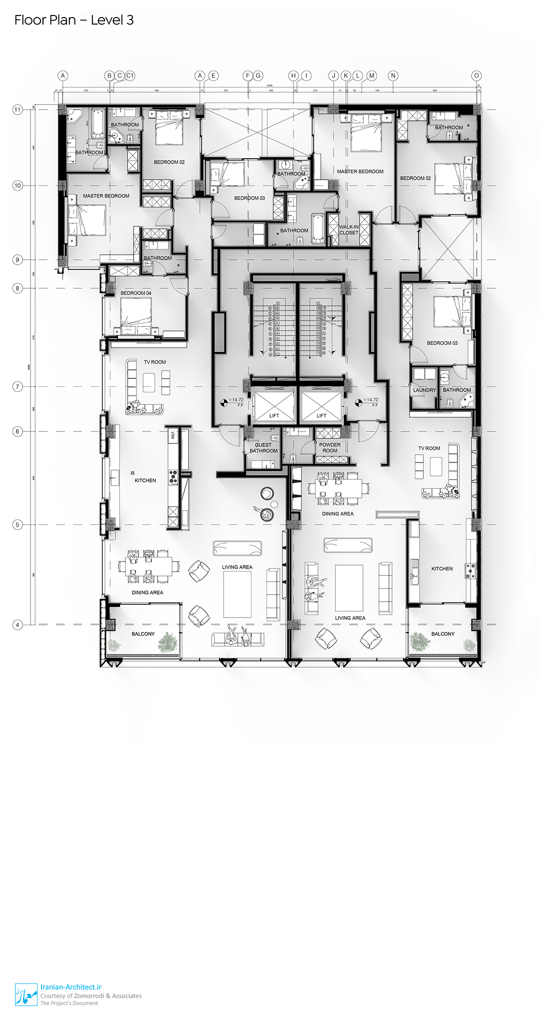
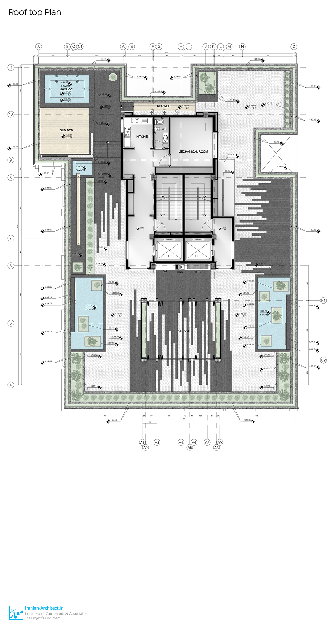
در بخش مسکونی، هفت طبقه به‌صورت دو واحدی شرقی-غربی طراحی شده‌اند تا بهترین نورگیری و تهویه طبیعی فراهم شود. بیشتر واحدها سه‌خوابه هستند و تعدادی از واحدهای غربی چهارخوابه طراحی شده‌اند. در آخرین طبقه، یک پنت‌هاوس تک‌واحدی با تراس بزرگ و باغ زمستانی قرار دارد که تجربه‌ای منحصربه‌فرد از زندگی لوکس شهری ارائه می‌دهد. بام ساختمان نیز علاوه بر فضاهای خدماتی و تأسیساتی، شامل آب‌نماها، باغچه‌ها و آتریوم است که به‌عنوان امتداد باغ‌های ذن ژاپنی، آرامش و طراوت را به ساختمان می‌افزاید.

ساختمان لتاج شماره یک / دفتر معماری زمردی و همکاران
Courtesy of Zomorrodi & Associates | Photo: Mohammad Hassan Ettefagh

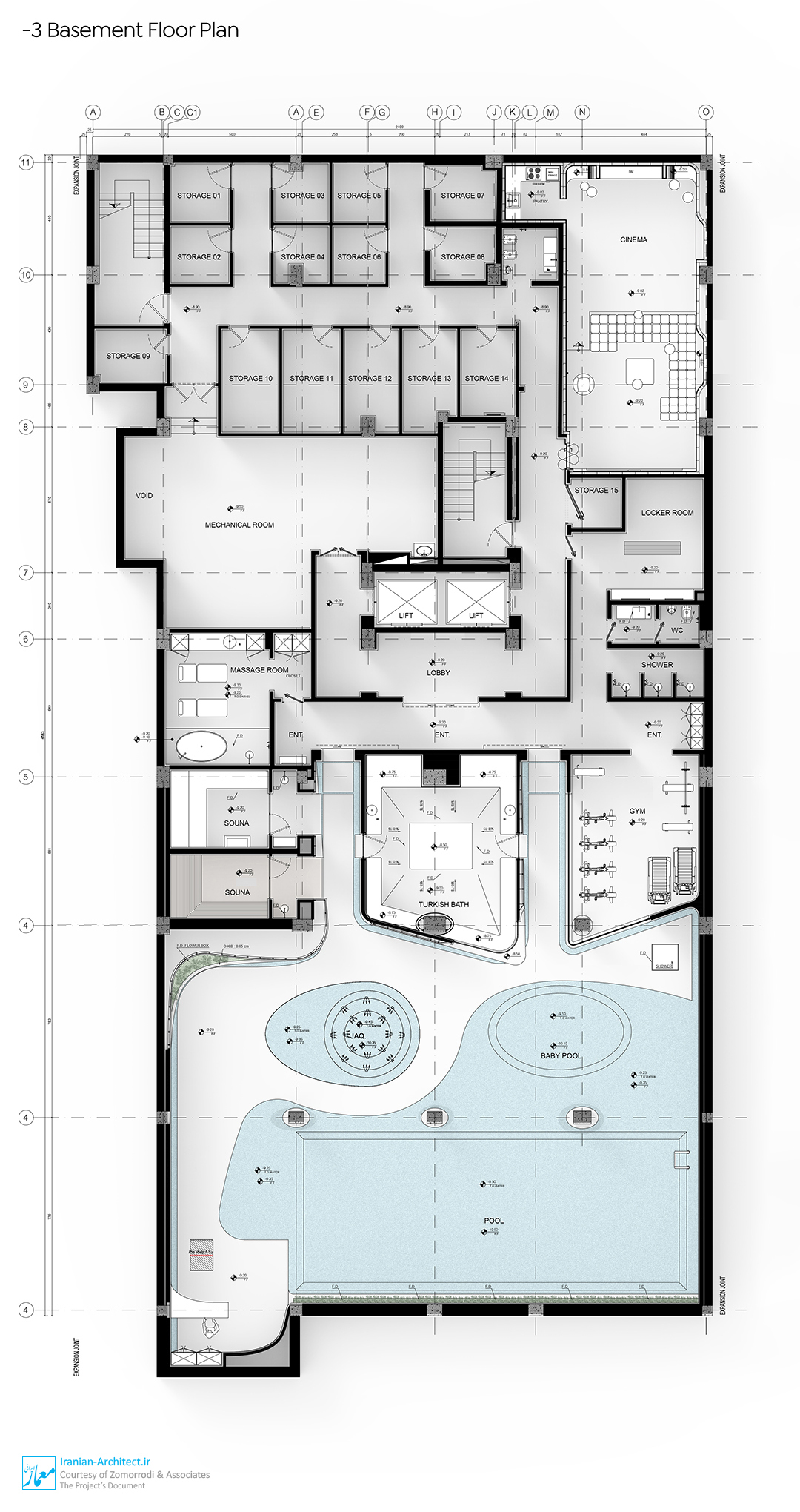
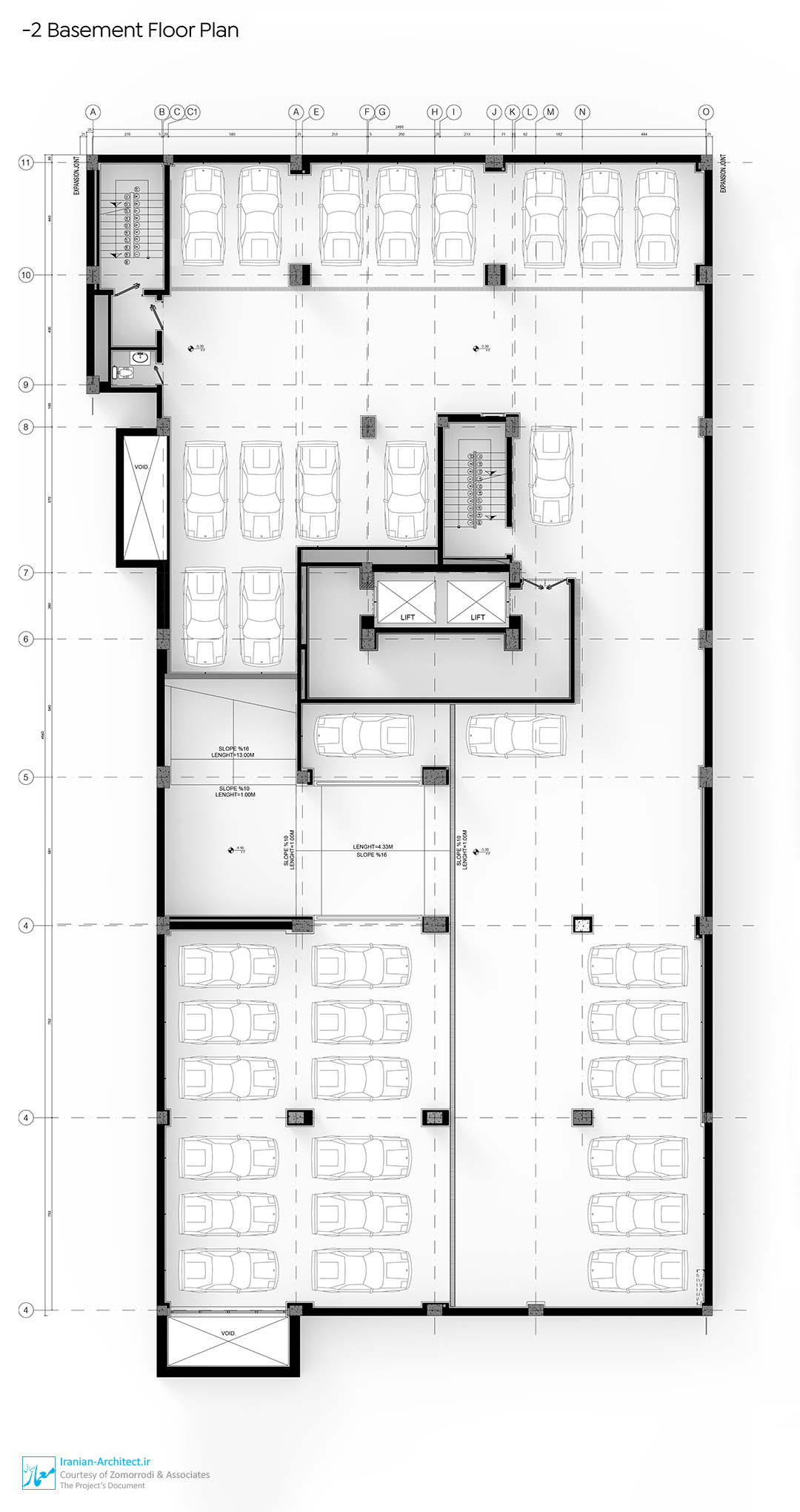
در بخش زیرزمین، دو طبقه به پارکینگ اختصاص یافته و یک طبقه به امکانات رفاهی ویژه اختصاص دارد. این طبقه شامل استخر و جکوزی با سیستم‌های نوین، سونا خشک و سونا بخار، باشگاه ورزشی مجهز، حمام و لاکر روم، حمام ترکی و فضای ماساژ، سالن سینما و یک بار در ضلع شمال‌شرقی است. همچنین برای هر واحد، انباری اختصاصی در این طبقه در نظر گرفته شده است.

ساختمان لتاج شماره یک / دفتر معماری زمردی و همکاران
Courtesy of Zomorrodi & Associates | Photo: Mohammad Hassan Ettefagh

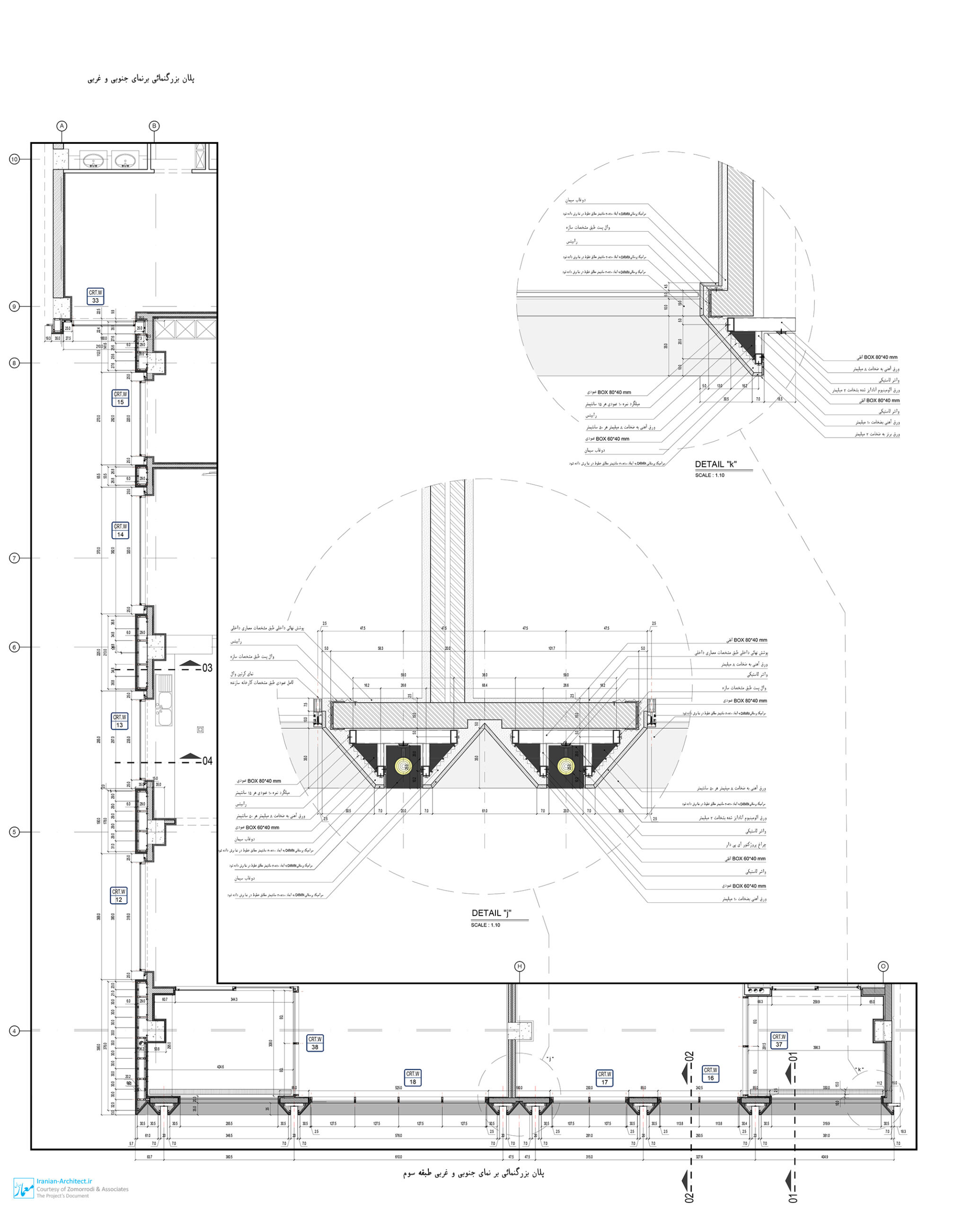
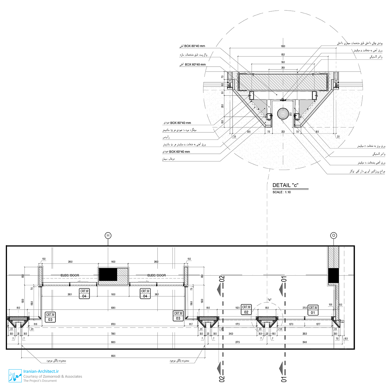
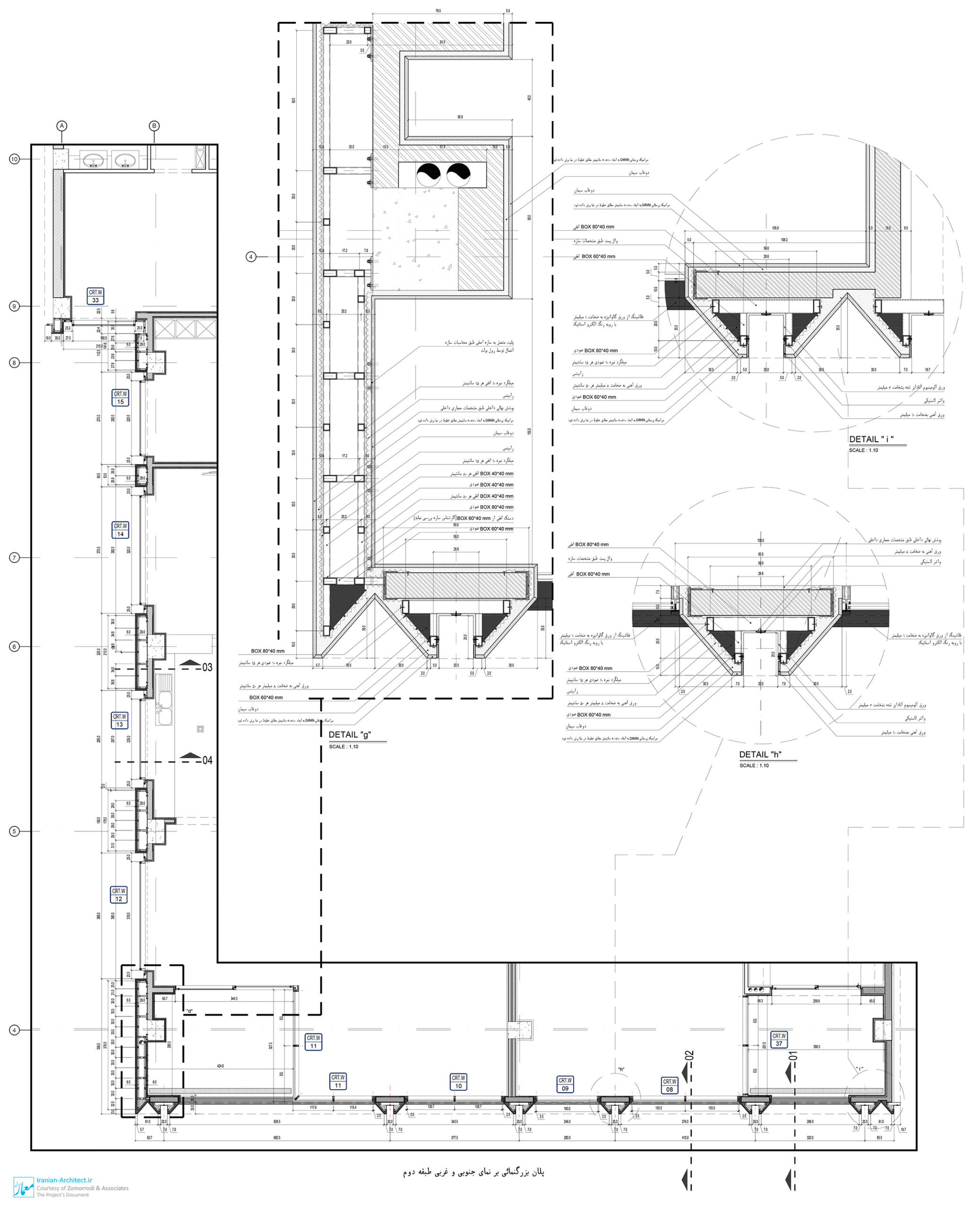
فرآیند طراحی نما از یک فرم مستطیلی خالص آغاز شد و بر اساس زون‌بندی و طبقات افقی تقسیم گردید. سپس یک شبکه مدولار به سطح اضافه شد که ریتم و انعطاف در ترکیب‌بندی فضاها را ایجاد می‌کرد. با جابه‌جایی و تغییر بخشی از خطوط شبکه، نمایی پویا شکل گرفت که میان پر و خالی تعادل ایجاد کرده و بازشوهایی را به‌وجود آورد که هم جلوه‌هایی از زندگی داخلی را آشکار می‌سازند و هم حریم خصوصی را حفظ می‌کنند. نتیجه نهایی، نمایی مینیمال و لوکس از باکس‌های سنگی است که نمادی از استواری و تداوم بوده و هماهنگ با طراحی داخلی و محوطه، یک تجربه آرامش‌بخش برای ساکنان رقم می‌زند.

ساختمان لتاج شماره یک / دفتر معماری زمردی و همکاران
Courtesy of Zomorrodi & Associates | Photo: Mohammad Hassan Ettefagh

طراحی نما و طراحی داخلی این پروژه به‌صورت هماهنگ و مکمل یکدیگر شکل گرفتند، به‌گونه‌ای که استفاده حداکثری از نور طبیعی در فضاهای نشیمن، پذیرایی و آشپزخانه از اصول اصلی طراحی بوده است. همچنین بهره‌گیری از متریال باکیفیت، رنگ‌های خنثی و بافت‌های طبیعی در کنار جزئیات مینیمال، فضایی گرم، مدرن و ماندگار برای ساکنان فراهم آورده است. حضور گرین‌وال‌ها در پاسیوها، نورهای خطی در راهروها و اتاق‌ها، و استفاده از سنگ و چوب طبیعی در عین سادگی، از شاخصه‌های اصلی طراحی داخلی این پروژه به‌شمار می‌آید.

ساختمان لتاج شماره یک / دفتر معماری زمردی و همکاران
Courtesy of Zomorrodi & Associates | Photo: Mohammad Hassan Ettefagh

سیستم استخر و جکوزی این پروژه با رویکردی نوآورانه طراحی شده است تا تجربه‌ای متفاوت از تعامل کاربر با آب ارائه دهد. کل سطح محوطه همواره زیر آب قرار دارد و تنها مسیرهای باریک امکان حرکت کاربران را فراهم می‌کنند، امکانی که هم امنیت و هم تجربه فضایی را تحت تأثیر قرار می‌دهد. عمق آب در این سیستم متغیر است؛ از جوی‌های آرام و کم‌عمق با ۵ سانتی‌متر عمق که تجربه عبور ملایم و حس اتصال به آب را ایجاد می‌کنند، تا بخش‌های اصلی شامل استخر بزرگ، استخر کودکان و جکوزی که عمق بیشتری دارند و امکان فعالیت‌های متنوع آبی را فراهم می‌آورند. محوطه استخر، استخر کودکان و جکوزی به نحوی طراحی شده‌اند که تمامی سطح محوطه با آب پوشانده می‌شود و مسیرهای حرکتی به‌صورت راه‌هایی شناور بر سطح آب تعبیه گردیده‌اند. تفاوت این مجموعه در آن است که با همکاری تیم هیدرولیک و مکانیکال و پس از تحقیقات و آزمایشات گسترده که بیش از یک سال به طول انجامید، سیستمی طراحی شد که با به‌کارگیری نوآورانه دانش فیزیک و مهندسی سیالات، تجربه‌ای منحصر به فرد را خلق کرد: سطحی یکپارچه از آب اما در ترازها و سطوح متفاوت، به گونه‌ای که یک آبشار دائمی در لبه استخر، استخر کودکان و جکوزی شکل می‌گیرد.

ساختمان لتاج شماره یک / دفتر معماری زمردی و همکاران
Courtesy of Zomorrodi & Associates | Photo: Mohammad Hassan Ettefagh

آب در این فضا هیچ‌گاه ساکن نیست و جریان دائمی آن یکی از عناصر کلیدی طراحی است. این جریان به‌صورت آبشار به داخل حفره‌های اصلی فرو می‌ریزد، پس از گذر از مراحل مختلف تصفیه و سختی‌گیری، دوباره به بخش‌های کم‌عمق بازمی‌گردد و چرخه‌ای مداوم ایجاد می‌کند. این روند نه‌تنها عملکرد سیستم تصفیه و گردش آب را تضمین می‌کند، بلکه تجربه فضایی استخر را همواره پویا، زنده و متغیر نگه می‌دارد. توجه داشته باشید که حجم بسیار زیاد آب و اختلاف دما میان استخرهای مختلف، یکی از بزرگ‌ترین چالش‌ها در روند طراحی و اجرایی بوده است. این رویکرد طراحی، استخر را از یک فضای صرفاً عملکردی به عنصری زنده و پویا تبدیل می‌کند. تعامل حرکت کاربران، تغییر عمق و جریان دائم آب، تجربه‌ای منحصر به فرد، پویا و چندلایه از فضا ایجاد می‌کند که همزمان کاربردی، ایمن و بصری جذاب است. مسیرهای عبور، تغییر عمق و جریان آب نه تنها تجربه کاربری را غنی می‌کنند، بلکه زبان سیال معماری فضا را کامل می‌سازند و استخر را به نقطه کانونی طراحی مجموعه بدل می‌کنند.

Letaj No. 01 Building

Zomorrodi & Associates (Shahrooz Zomorrodi)

Location: Tehran, Iran
Date: 2024
Status: Completed
Area: 9,000 sqm
Client: Mr. Tajik
Design Team: Reza Katebi, Nastaran Shabanzadeh, Anahita Seifaei
Technical Design Management: Hamed Noorian
Technical Design Team: Parisa Aboutrabian, Afrooz Demeheri, Elaheh Saberi, Alireza Mohit, Kiana Zare, Parmida Heidari
3D Modeling: Ali Moravej, Reza Ketabi
Construction: Letaj Group
Presentation: Sepideh Rezvani, Fatemeh Shahani
Photo: Mohammad Hassan Ettefagh

The Letaj NO.01 Residential Project is located on Saeedi Street in the Doros neighborhood of Tehran, on a land plot of 1,250 square meters with a built-up area of 9,000 square meters. The building consists of three basement levels, a ground floor, and eight residential floors above ground. The design team entered the project after the structural stage was completed and, by focusing on the façade, rooftop, interiors, and penthouse, enhanced the identity and architectural quality of the project.

The ground floor features a luxurious lobby and a multipurpose hall that provide not only a grand entrance but also a social gathering and interaction space for residents. The interior design concept of the lobby and multipurpose hall draws inspiration from Japanese Zen gardens. Exposed gardens with white gravel are designed at the entrance and lobby area, evoking the serenity and minimalism of Zen philosophy. A central column in the form of a tree-like element symbolizes nature within the interior, creating a vertical connection in the space. Its fluid form contrasts poetically with the rigid, angular lines around it, evoking a natural sense of growth and movement, as if nature itself flows through the architecture.

The residential section consists of seven floors, each designed with two east–west oriented units to maximize natural lighting and ventilation. Most units are three-bedroom apartments, while several west-facing units are designed as four-bedroom layouts. The top floor accommodates a unique single-unit penthouse with a large terrace and a winter garden, offering a distinctive experience of luxury urban living. The rooftop includes not only service and utility spaces but also water features, gardens, and an atrium that extend the language of Japanese Zen gardens, adding tranquility and vitality to the building.

In the basement, two levels are dedicated to parking, while one level is designed for exclusive recreational amenities. This level includes a swimming pool and jacuzzi with advanced systems, dry and steam saunas, a fully equipped gym, showers and locker rooms, a Turkish bath and massage area, a cinema hall, and a bar located in the northeast corner. Dedicated storage spaces for each unit are also provided on this floor.

The façade design began with a pure rectangular form, divided horizontally based on zoning and floor levels. A modular grid was then applied to the surface, introducing rhythm and flexibility into the composition. By shifting and altering sections of the grid, a dynamic façade emerged, balancing solid and void spaces while creating openings that reveal glimpses of interior life while maintaining privacy. The result is a minimal yet luxurious façade of stone-clad volumes, symbolizing strength and permanence. In harmony with the interiors and landscaping, the façade offers residents a serene architectural experience.

The façade and interior design were developed in parallel as complementary elements. Maximizing natural light in living rooms, reception areas, and kitchens was a central principle. High-quality materials, neutral color palettes, and natural textures, combined with minimalist detailing, create a warm, modern, and timeless living environment. Key features of the interior design include the use of green walls in patios, linear lighting in corridors and rooms, and natural stone and wood finishes that, despite their simplicity, create richness and depth. 

The swimming pool and jacuzzi system of this project has been designed with an innovative approach to provide a unique interaction with water. The entire poolside area is constantly submerged, with only narrow walkways allowing circulation, an approach that impacts both safety and spatial experience. The water depth varies: from shallow streams with just 5 cm of depth that create a gentle, immersive passage experience, to larger sections such as the main pool, children’s pool, and jacuzzi, which allow for diverse aquatic activities. The entire pool deck is designed so that the surface is covered with water, with circulation paths appearing as floating walkways.

What sets this system apart is the result of over a year of research, experimentation, and collaboration between hydraulic and mechanical teams. By applying advanced knowledge of physics and fluid engineering, a unique system was developed: a unified water surface at varying depths and levels, with continuous waterfalls cascading from the edges of the main pool, children’s pool, and jacuzzi. The water is never static; it constantly flows into recessed cavities, passes through multiple filtration and treatment processes, and returns to the shallow areas, creating a perpetual cycle. This not only ensures efficient water circulation and purification but also maintains a dynamic and ever-changing spatial experience. The large water volume and temperature variations between different pools posed one of the greatest design and execution challenges.

This approach transforms the swimming pool from a purely functional space into a living, dynamic architectural feature. The interaction of user movement, changing depths, and continuous water flow creates a layered, multisensory spatial experience that is functional, safe, and visually striking. Circulation paths, depth variations, and water flow enrich the user experience while reinforcing the fluid architectural language, ultimately making the pool the focal point of the complex.

Leave A Comment

Your email address will not be published. Required fields are marked *