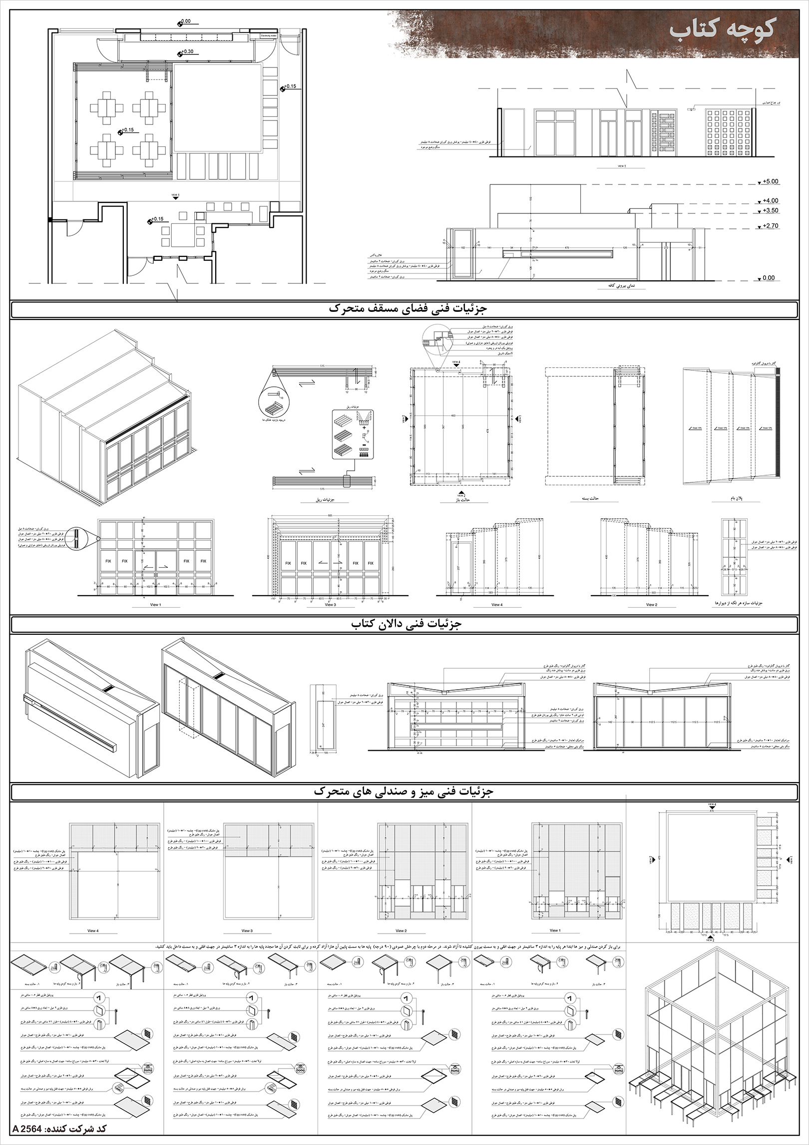
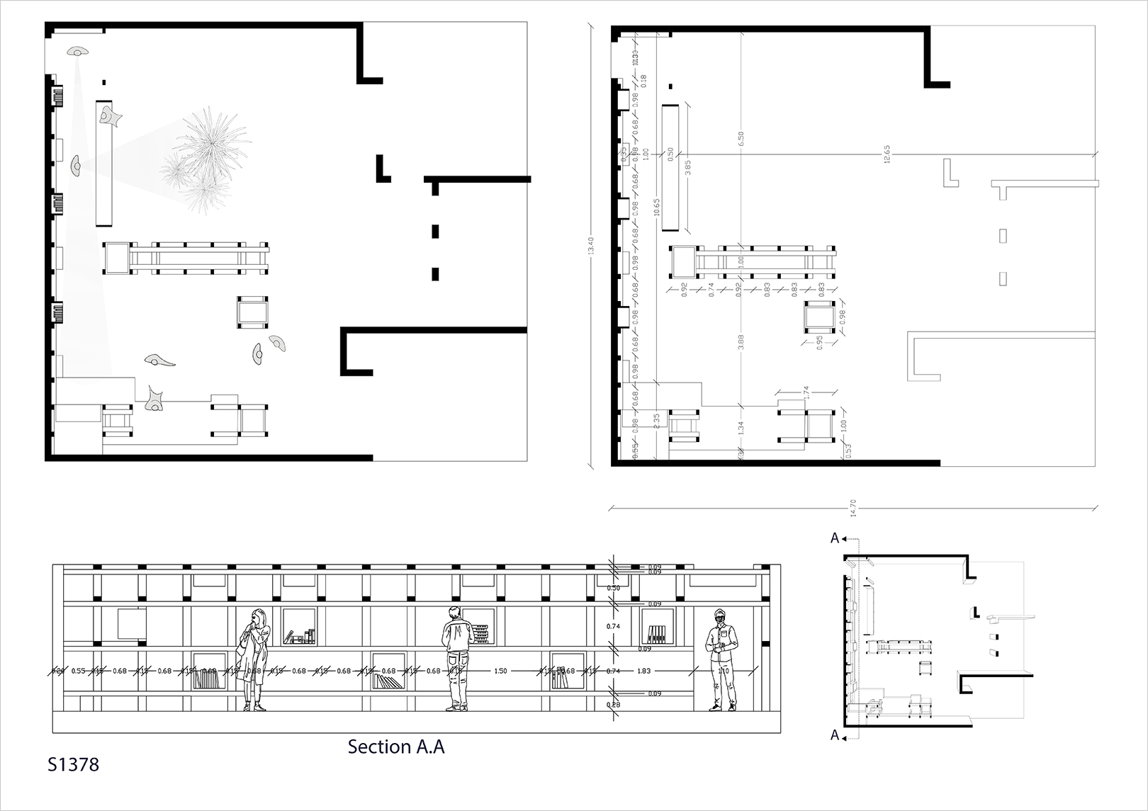
آثار برگزیده مسابقه معماری کوچه کتاب
مسابقه طراحی فضای باز و حیاط کافهکتاب شمعسوزان در تبریز
برگزارکننده: کارگروه معماری موسسه تبریزشناسی
کارفرما: کافهکتاب شمعسوزان
داوران: زهرا آرمند، جعفر بزاز، آرش پوراسماعیل، حبیبه مجدآبادی، کمال یوسفپور
مدیر مسابقه: سپیده مغانی
دبیر مسابقه: اولدوز فضلعلی
تاریخ اعلام نتایج: ۱۰ دی ۱۴۰۴
بیانیه داوری
داوری مسابقه معماری کوچه کتاب طی دو روز پیاپی، در روزهای ۶ و ۷ دی ۱۴۰۴ صورت گرفت. در روز نخست، هر یک از داوران بهطور جداگانه ۳۰ پروژه شرکتکننده را بررسی کرده و بر اساس معیارهای خود به حذف آثار پرداختند. در این مرحله، ۱۲ پروژه با رای اکثریت مطلق و ۹ پروژه با رای اکثریت نسبی داوران کنار گذاشته شدند، و بدینترتیب، ۹ پروژه باقیمانده به دور دوم راه یافتند. در روز دوم، علاوه بر ارزیابی دقیق آثار باقیمانده، ۵ پروژه از میان آثار حذفشده با رای اکثریت نسبی داوران نیز دوباره مورد بازبینی قرار گرفتند تا هیچ ایده شایستهای از نظر دور نماند. در نهایت، ۸ پروژه به عنوان فینالیست انتخاب شدند و به مرحله پایانی راه یافتند. در این مرحله، داوران ۳ پروژه را به عنوان رتبههای اول تا سوم و ۵ پروژه را شایسته تقدیر معرفی کردند.
داوران در فرایند داوری به دنبال پروژههایی بودند که نگاهی نو و ایدهای متمایز درباره ساختار معماری و سازماندهی فضایی ارائه دهند؛ آثاری که بتوانند با زبانی یکدست در معماری، پرسشی تازه درباره نسبت معماری با شهر، جامعه و زندگی روزمره مطرح کنند و از سطح یک طراحی داخلی یا چیدمان و دکور صرف فراتر روند. این رویکرد سبب شد پروژههایی برجسته شوند که توانستهاند با خلاقیت و جسارت در طرح ایده، کیفیتی معمارانه و اندیشهای معاصر را در قالب اثر خود به نمایش بگذارند.
رتبه اول: نگین شکری، مهدی صفاریان
پروژه برنده رتبه اول با ایدهای شجاعانه و جسورانه، فراتر از مرزهای معمول حرکت کرده و پرسشی تازه درباره رابطه معماری و شهر مطرح ساخته است. در شرایط امروز که مردم بیش از پیش به زندگی شهری و بازپسگیری فضاهای عمومی گرایش دارند، این اثر پیامی ارزشمند درباره شهر و نقش معماری در آن ارائه میدهد. این پروژه با نگاهی معاصر به معماری و فضای عمومی، طرح را در اتصال با شهر و به مثابه فضایی دعوتکننده و اجتماعی دیده که میتواند همچون یک نشانه یا نقطهای کانونی در محله عمل کند و تاثیر عمیقی بر بافت شهری بگذارد. در همین راستا، افزودن یک سطح تازه به پروژه و پلههای دسترسی به آن که کوچه را به صحنه نمایش بدل میسازند، این امکان را فراهم کرده است که فضای جلوی کافه به پاتوقی شهری و پویا تبدیل شود.
رتبه دوم: یاسمن ناشر احکامی، امیرعلی حائری اسدی
پروژه برنده رتبه دوم با طراحی هوشمندانه بدنه بیرونی، از همان ابتدا، نوعی حس کنجکاوی در مخاطب ایجاد کرده و این پرسش را در ذهن او برمیانگیزد که درون بنا چه میگذرد و بدینترتیب، ارتباطی پویا میان فضای شهری و فضای داخلی برقرار میکند. زبان معماری این پروژه، یکدست و ساده بوده و از هرگونه پیچیدگی غیرضروری پرهیز کرده است. این اثر توانسته است پاسخی روشن و قطعی به خواستههای مسابقه دهد و برنامه آن را حتی فراتر از انتظارات اولیه، پیش ببرد. در همین راستا، عدم طراحی یک ساختار صلب و ثابت، به شکلگیری فضاهای انعطافپذیری انجامیده که میتوانند میزبان رویدادهای جمعی متنوعی باشند.
رتبه سوم: امیررضا مددی جاوید، فاطمه مختاری، فاطمه رشیدی، ثمین بافنده زمانپور، فاطمه مرادی
پروژه برنده رتبه سوم با دیدگاهی کاملا متفاوت وارد مسابقه شده است و طراحی آن بر ایجاد فضاهایی اختصاصی و شخصی برای مطالعه، در قالبی کیوسکمانند تمرکز دارد. اگرچه ممکن است برخی با ایده مطرحشده در آن موافق نباشند، اما ارزش این اثر در وضوح و صراحت ایده آن نهفته است. این پروژه توانسته است با یک ساختار کاملا ساده و مشخص، جایگاهی برای تجربه فردی در دل فضای عمومی پیشنهاد دهد و بدینترتیب، پرسشی تازه درباره نسبت فرد و شهر مطرح کند.
شایسته تقدیر: حسن بدرتی
شایسته تقدیر: حسین پیوکانی
شایسته تقدیر: هومن زمانی، فاطمه سیدجوادی، نیما دانایی
شایسته تقدیر: مینا رهنما، سینا علوی
شایسته تقدیر: سهیل کریمی





















