ساختمان مسکونی کنج واگرا
دفتر معماری سپیدار (جواد شعری)
موقعیت: طرقبه، مشهد، ایران
تاریخ: ۱۴۰۳
مساحت: ۱،۲۰۰ مترمربع
وضعیت: ساختهشده
کارفرما: خانواده نعمتی
تیم طراحی: سهیل قدس نبوی، حسین پیوکانی، نغمه رضازاده، ملیحه ذبیحی
مدلسازی: حسین پیوکانی
سازه: مرتضی فرهمند
تاسیسات و اجرا: امیر نعمتی
گرافیک: حسین پیوکانی، مهدیس محمدی
عکس: استودیو دیمن
سفارش این پروژه به دفتر ما، در ابتدا با یک درخواست متضاد «سه گانه» توسط کارفرما صورت گرفت. سفارشدهنده تشریح کرد که یک آپارتمان برای زندگی خودش، پسرش و دخترش نیاز دارد و در ادامه تاکید داشت که حدود دو و یا سه دهه قبل، آنها در خانههای نیمهویلایی حیاطدار زندگی کردهاند. پس از بررسیهای اولیه خواستههای کارفرما و زمینه پروژه، متوجه شدیم که سه ویژگی مهم در این خواسته نهفته است:
۱. همسایگی سه نسل (پدر، پسر و دختر، نوهها)
۲. وجود یک پارک جنگلی خطی مقابل پروژه
۳. هندسه سایت بسیار نامنظم و دارای کنجهایی با زوایای مختلف

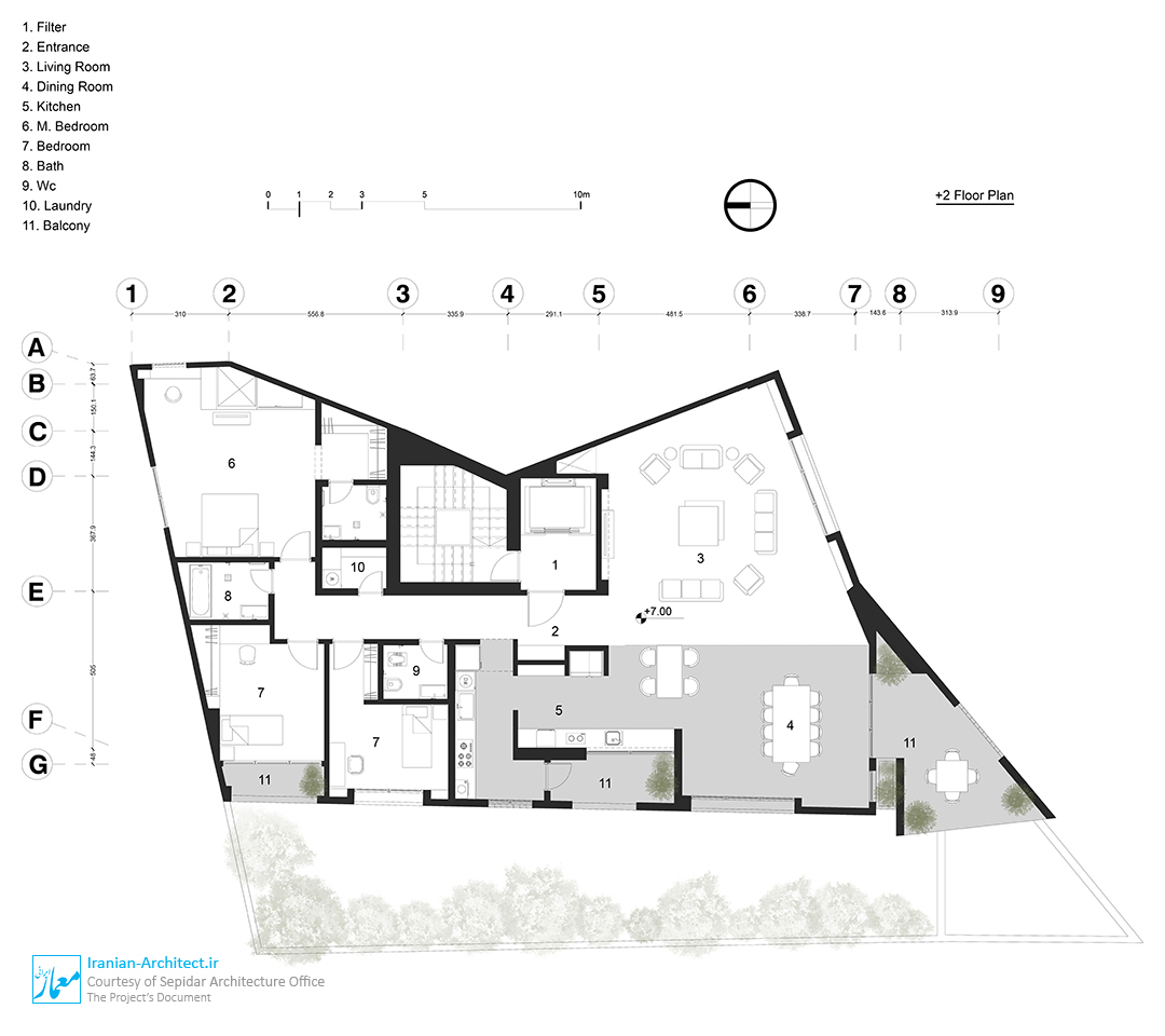
در ادامه، سعی کردیم چند دیاگرام فضایی و ساختاری مختص به پروژه طراحی کنیم. فضاهای عمومی و خصوصی را به صورت شمالی و جنوبی جدا کردیم و فضاهای خواب را از هیاهوی پارک دور کردیم. پاکت فضایی پروژه را در سه نوع فضای نیمهباز دیدیم که شامل تراسهای نشیمن، تراسهای اتاق خواب و تراسهای آشپزخانه است.

رابطه یک اثر معماری با زمینه شهری (لایههای کالبدی و معنایی زندگی روزانه اهالی شهر)، میتواند تداعیکننده اثری بااصالت در ذهن مخاطب باشد. ژنهای هندسی نهفته در ارکان تشکیل دهنده شهر و منطقه (کوچه، خیابان، مراکز محله و …)، سرخطهای بسیار مناسبی برای ایده یک اثر بوده و همزیستی خوبی میان اثر جدید معماری و مردم به وجود میآورد. سه لایه تاثیر گذار که در مرحله شناخت و تحلیل مساله در این پروژه شناسایی شدند:
– تار و پود غیرشطرنجی بافت شهری و محلی
– هندسه و انرژیهای سایت با کنجهای حاده و خاص
– مناظری با زوایای متعدد در یک پاکت حجمی
همپوشانی این لایهها منجر به شکلگیری نوعی از پاکت حجمی شد که سعی داشته سه لایه مذکور را در دل خود جای دهد و نظامهای فضایی دسترسی، عملکرد و تقسیمبندی، بر اساس آن شکل بگیرند.

در مهمترین برش پاکت فضایی، بزرگترین تراس را در کنج پروژه تعبیه کردیم تا نمادی از ایوان خانههای قدیم ساکنین جدید باشد. در واقع، ایده اصلی این پاکت فضایی برگرفته از ایوان خانههای قدیم در بافت منطقه بوده است. ناگفته نماند جهتگیری این تراسها در کنج، با توجه به مواجهه با آفتاب و پارک، در طول ساخت اسکلت ساختمان، چندین مرتبه توسط پدر و دختر تغییر کرد و جهتگیری بر اساس طبع هر خانواده طراحی شد. حد میان خانه و آپارتمان همیشه به عنوان چالش اصلی طراحی در سکونتگاهها محسوب میشود. قابهای متعدد و با حس و حال متفاوت در این اثر معماری باعث شده که حس و حالهای مختلفی در هر طبقه برای سه نسل کاربر (پدر، پسر و دختر) به وجود بیاید.

در داخل پروژه سعی شد، فضاهای بسته در میان فضاهای نیمه باز (تراس)، خلوص خود را حفظ کند تا طبیعت بکر به عنوان منظر اصلی ساکنین از دریچه های شفاف (شیشه) و نیمه شفاف (فخر و مدین) عمل کند. پیام این اثر معماری، از یک سو عدم قطع ارتباط مخاطب با گذشته خود و از سوی دیگر، ارتباط حداکثری با طبیعت، در عین رعایت موارد اقلیمی است.
Konj-e-Vagara Residential
Sepidar Architecture Office (Javad Sheri)
Location: Torqabeh, Mashhad, Iran
Date: 2024
Area: 1,200 sqm
Status: Completed
Client: Ne’mati Family
Design Team: Soheil Qods Navabi, Hossein Piukani, Naghmeh Rezazadeh, Maliheh Zabihi
Modeling: Hossein Piukani
Structure: Morteza Farahmand
MEP Engineering & Construction: Amir Ne’mati
Graphic: Hossein Piukani, Mahdis Mohammadi
Photo: Diman Studio
The commission for this project began with what the client described as a “threefold contradiction.” He approached our office with the request to design an apartment building for himself, his son, and his daughter — three separate households bound by family ties. Early in our conversations, he emphasized that two or three decades ago, their family had lived in semi-detached courtyard houses — a typology that shaped their memories of home.
Through our initial studies of the client’s needs and the project’s context, three key elements emerged:
1. The coexistence of three generations — father, son, daughter (and grandchildren) — as immediate neighbors.
2. The presence of a linear forest park directly facing the site.
3. A highly irregular site geometry with sharp and unconventional angles.
We began by developing a set of spatial and structural diagrams tailored to these conditions. Public and private zones were divided along the north–south axis, with sleeping areas set back from the liveliness of the park. The spatial envelope of the project was defined through three types of semi-open spaces: living terraces, bedroom terraces, and kitchen terraces — each serving as a different layer of interaction between indoor life and the surrounding landscape.
The dialogue between architecture and its urban context — both in physical form and in the lived meaning of the city — was central to our approach. We believe that when architecture resonates with the genetic geometry of its environment — the alleys, streets, and neighborhood centers that define local identity — it achieves a genuine sense of originality and belonging.
During the site analysis, three influential layers were identified:
– The non-orthogonal urban fabric of the neighborhood.
– The unique geometry and energy of the site’s acute corners.
– The multiplicity of visual perspectives created within a compact volumetric envelope.
The overlap of these layers led to the formation of a distinct volumetric pocket, which became the foundation for spatial organization, access hierarchy, and functional zoning.
At the most prominent corner of this volume, we designed a large terrace — a contemporary interpretation of the traditional iwan (veranda) found in old regional houses. Throughout construction, the orientation and configuration of these corner terraces were adjusted several times by the father and daughter, responding to sunlight, views, and their personal temperaments — a living design process shaped by the users themselves.
The blurred boundary between “house” and “apartment” became the project’s central design challenge. A series of frames, each evoking different atmospheres, creates unique spatial experiences for each generation — father, son, and daughter — across the three floors.
Inside, enclosed rooms were placed between semi-open terraces to preserve spatial purity and ensure that untouched nature remained the dominant visual experience. The transparent and semi-transparent layers — glass and patterned brick— frame ever-changing views of greenery and light.
Ultimately, the architectural message of this project is twofold: to maintain a living connection with the past, and to establish a deep, climatic, and sensory relationship with nature.





























